Los chiringuitos de playa que crecen hacia abajo
Las reformas en los bares con sótanos de hormigón en Andalucía son hoy rechazadas por los responsables de Costas al considerar que dañan los arenales
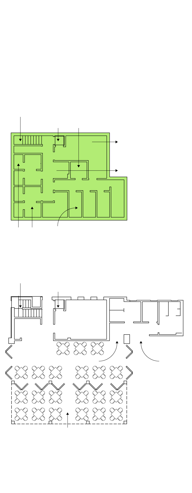
Lo que se ve en los nuevos chiringuitos
La planta a nivel de mar se utiliza íntegramente para el servicio a los clientes
Chiringuito
Kala Kalua
(Marbella)
Comedor
(terraza
acristalada)
Terraza
exterior
Barra, cocina y aseos
Escalera,
montacargas
y zona de cocina
Almacén
de comida
y bebida
Vestuarios
y aseos
Oficina
Lo que no se ve en los nuevos chiringuitos
Fuente: Junta de Andalucía y elaboración propia.
Papallones
Lo que se ve en los nuevos chiringuitos
La planta a nivel de mar se utiliza íntegramente para el servicio a los clientes
Chiringuito
Kala Kalua
(Marbella,
Málaga)
Comedor
(terraza
acristalada)
Terraza
exterior
junto a la
arena
Barra, cocina y aseos
Escalera,
montacargas
y zona de cocina
Almacén
de comida
y bebida
Vestuarios
y aseos
Oficina
Lo que no se ve en los nuevos chiringuitos
Fuente: Junta de Andalucía y elaboración propia.
Papallones
Chiringuito Kala Kalua
(Marbella, Málaga)
Lo que se ve en los nuevos chiringuitos
La planta a nivel de mar se utiliza íntegramente para el servicio a los clientes
Barra, cocina y aseos
Comedor
(terraza acristalada)
Terraza exterior
junto a la arena
Escalera,
montacargas
y zona de
preparación
de alimentos
Vestuarios
y aseos
Oficina
Almacén de
comida y
bebida
Lo que no se ve en los nuevos chiringuitos
Fuente: Junta de Andalucía y elaboración propia.
Papallones
Lo que se ve en los nuevos chiringuitos
Chiringuito Kala Kalua
(Marbella, Málaga)
La planta a nivel de mar se utiliza íntegramente para el servicio a los clientes
Paseo
marítimo
Playa del
Cortijo
Blanco
Barra, cocina y aseos
Comedor
(terraza acristalada)
Terraza exterior
junto a la arena
Escalera,
montacargas
y zona de
preparación
de alimentos
Vestuarios
y aseos
Oficina
Almacén de
comida y
bebida
Lo que no se ve en los nuevos chiringuitos
Fuente: Junta de Andalucía y elaboración propia.
Papallones
La imagen de los merenderos de madera y barcas con espetos de sardinas en la Costa del Sol es cada día menos habitual. Los chiringuitos tradicionales han ido dejando paso a proyectos que han crecido en tamaño y precio, ofreciendo hamacas y camas balinesas sobre césped artificial. Y en los últimos años han proliferado, legalmente, los que incluyen grandes sótanos de hormigón, que utilizan a modo de almacén, bajo la propia arena de la playa. “No se ven, pero son auténticos búnkeres”, dice Salvador Campos, abogado con una larga trayectoria ecologista y miembro de la asociación Malaka, ligada a Ecologistas en Acción. Y están construidos en la franja denominada de Dominio Público Marítimo Terrestre (DPTM), área sujeta a especial protección por ley debido a su valor natural, como indica la propia Constitución. Estas infraestructuras dañan las playas y aumentan su erosión, según afirman desde la Demarcación de Costas, dependiente del Gobierno central, que lleva años informando desfavorablemente a quienes pretenden construirlas. A pesar de ello, la Junta de Andalucía, competente en otorgar las licencias, los desoye. Un estudio de 2019 reflejaba que solo un 26% del litoral andaluz estaba protegido, cifra que caía al 2% en el caso de la costa malagueña. “Y la situación va a peor”, señala Campos. Málaga cuenta con 400 chiringuitos legales o en proceso de regularización, la mitad de toda Andalucía.
Ecologistas Malaka ha iniciado, junto a Ecologistas en Acción, una campaña de denuncias contra chiringuitos que “urbanizan” el litoral con infraestructuras fijas y exceden la ocupación prevista con grandes terrazas. Han presentado, solo en Marbella, una quincena de escritos y alegaciones a proyectos de establecimientos con habitación subterránea construida o por construir. La situación viene a enredar la maraña legal existente alrededor de los chiringuitos, regidos por la Ley de Costas, texto que ha sufrido diversas modificaciones desde su publicación en verano de 1988. Y volverá a tenerlas porque el Gobierno tiene previstos nuevos cambios.
Desde abril de 2011, Andalucía —entonces presidida por el socialista José Antonio Griñán— asume las competencias de ordenación y gestión del litoral andaluz, que incluye estas instalaciones. La Administración siempre ha cerrado filas con los empresarios del sector, considerados vitales para el turismo, principal motor económico de la región. En esta década, el modelo de crecimiento subterráneo se ha asentado. Los ecologistas creen que existe una gran impunidad en el litoral y que las inspecciones públicas brillan por su ausencia a pesar de que “las irregularidades se repiten” y las playas sufren las consecuencias. “Lo que nos preocupa es la urbanización del suelo público, que haya edificaciones fijas y sean cada vez más en una zona tan delicada, de todos y protegida por ley”, insiste Rafael Yus, uno de los responsables de Ecologistas en Acción en Málaga, que cree además que los sótanos deberían computar como superficie ocupada en la concesión —ahora no lo hace—, algo que la Demarcación de Costas está abierta a estudiar. “¿Qué pasaría si plantean cuatro plantas hacia abajo, tampoco se tendrían en cuenta esos metros?”, se preguntan los ecologistas.

La organización ha arrancado su campaña en Marbella porque considera que es “la zona cero” por la acumulación de chiringuitos de todas las tipologías y tamaños, con unos 60 en su costa. Sin embargo, la asociación señala que el crecimiento hacia abajo ha proliferado también en otros puntos de la Costa del Sol, como Estepona —allí, fuera del domino público, según explican fuentes del Ayuntamiento—, Torrox, Torremolinos o la capital malagueña, donde existen varios chiringuitos con sótano en las playas de La Caleta y Guadalmar. También en otras zonas del litoral andaluz como Granada. Una veintena, como mínimo, que son la inmensa mayoría de los que han sido renovados en los últimos años, lo han construido. Bajo tierra hay cámaras frigoríficas, almacenes, oficinas y vestuarios. Fuentes del sector indican que son espacios básicos para su día a día y que hacen “más fácil” su trabajo. La Ley de Costas indica, eso sí, que las edificaciones de servicio de playa se deben ubicar, “preferentemente”, fuera de ella. Cuando no sea posible, se podrán hacer en la arena “en el caso en que la anchura de la playa así lo permita, a una distancia mínima de 70 metros desde la línea de pleamar, siempre que no se perjudique la integridad del dominio público marítimo-terrestre ni su uso”. Una distancia inexistente en la práctica mayoría de la costa malagueña, aunque este requisito desaparece cuando los chiringuitos se adosen al límite superior del dominio público, generalmente un paseo marítimo, que es lo que suele ocurrir habitualmente.
El caso de Marbella
En Marbella, epicentro de las críticas, el Ayuntamiento obtuvo 25 de estas concesiones entre los años 2012 y 2013 tras un largo procedimiento que, en algunos casos, tuvo a los sótanos como protagonistas. La Demarcación informaba de que no se podían construir, pero trámite a trámite fue cediendo hasta que, al final, dijo que sí. Las licencias fueron otorgadas luego a empresas privadas mediante concurso público, con una duración inicial de 10 años prorrogable a cinco más y un canon de entre 13.000 y 26.000 euros anuales. Buena parte de los proyectos preveían sótano con hormigón y desde entonces se han levantado una decena en la localidad, según fuentes municipales. El actual Diblú Beach fue el primero. Más tarde han llegado otros como La Milla, Kala Kalúa o Sacay. “El modelo era similar en todos los casos, solo podíamos elegir la distribución interior o los tipos de cierre”, explican desde este último chiringuito, donde señalan que durante las obras que realizaron en 2018 los inspectores municipales “comprobaron la obra muchísimas veces”. Otros casos, como Trocadero o Marbella Club, finalmente no han construido el sótano. Y aunque ello podría suponer la pérdida de la concesión —por no actuar según el proyecto presentado— en el Ayuntamiento marbellí explican que están trabajando en modificar ese título concesional para mantener las instalaciones tal y como están ahora. “Y otros no se han atrevido a construir las instalaciones de cemento porque la concesión está cumplida y se la renuevan año a año. Con esa inseguridad no se puede invertir el dineral que cuestan”, subrayan fuentes del sector. Actualmente hay otros tres chiringuitos con sótano en trámites de concesión en la localidad marbellí, concretamente en las playas del Realejo y la Víbora.
Chiringuitos con sótano en Marbella
Las construcción de sótanos bajo los chiringuitos
convierte estas edificaciones temporales en
construcciones permanentes. Aquí se localizan
algunos chiringuitos en la costa de Málaga donde
se han realizado obras de similares características
para la edificación bajo la planta existente.
MÁLAGA
AP-7
Marbella
San Pedro
de Alcántara
Puerto
Banus
A-7
2 km
Chiringuito
Kala
Kalua
Playa del Cortijo Blanco
20 m
Fuente: elaboración propia.
Papallones
Chiringuitos con sótano en Marbella
Las construcción de sótanos bajo los chiringuitos convierte
estas edificaciones temporales en construcciones
permanentes. Aquí se localizan algunos chiringuitos en la
costa de Málaga donde se han realizado obras de similares
características para la edificación bajo la planta existente.
MÁLAGA
AP-7
Marbella
San Pedro
de Alcántara
Puerto
Banus
A-7
2 km
Chiringuito
Kala
Kalua
Playa del Cortijo Blanco
20 m
Fuente: elaboración propia.
Papallones
Chiringuitos con sótano en Marbella
Las construcción de sótanos bajo los chiringuitos convierte estas edificaciones temporales en
construcciones permanentes. Aquí se localizan algunos chiringuitos en la costa de Málaga donde
se han realizado obras de similares características para la edificación bajo la planta existente.
MÁLAGA
AP-7
Marbella
Puerto
Banus
San Pedro
de Alcántara
A-7
2 km
Chiringuito
Kala
Kalua
Playa del Cortijo Blanco
20 m
Fuente: elaboración propia.
Papallones
Carlos Romero es el propietario de Kala Kalúa, que se despliega a 20 metros de la orilla cerca del margen derecho del río Guadaiza. Recibió una de las concesiones municipales en 2014 y acometió su nuevo chiringuito en 2018, tras cuatro años esperando la licencia de obras. Invirtió casi 700.000 euros: una mitad en la obra y la otra, en el equipamiento. Subraya que en el renovado espacio puede cumplir todas las normativas sanitarias y mantener una actividad que ya no es temporal. El incremento del turismo internacional le permite abrir todo el año “manteniendo además mucho empleo” más allá del verano. “Necesitas espacio de almacén y es mejor ahí abajo que ocupando más playa”, dice el empresario, que subraya que la estructura de hormigón le ayuda también a defenderse en los temporales ante las acometidas del mar “que se ha comido media playa en dos décadas y nadie aporta la arena que se pierde”, subraya insistiendo en que el suyo es un establecimiento legal.
Consecuencias naturales y económicas
Para la Demarcación de Costas, la pérdida de arena se ha intensificado, precisamente, por la construcción de sótanos, “que rigidizan la costa y dañan su dinámica”. Es decir, por un lado, al ser una obra fija “dificultan enormemente la regeneración del entorno”. Por otro, estas construcciones cimentadas son obstáculos para la marea. Y el hormigón termina funcionando como un roque o un acantilado, que multiplica la energía del oleaje, y este produce que se pierda más arena. “La urbanización de la propia playa produce inevitablemente que aumenten los efectos erosivos de los temporales”, insisten desde Costas, donde creen que ello tiene consecuencias naturales y económicas, pues a largo plazo daña al turismo. La Administración estatal ha cambiado de parecer: si a principios de la década pasada informaba favorablemente, aunque con reticencias, ante las solicitudes de construcción de estas infraestructuras, ahora ya nunca lo hace y se posiciona contraria a su construcción. La ley indica que sin un informe positivo o un acuerdo entre administraciones no puede otorgarse concesión.
Si actualmente se siguen construyendo sótanos se debe a que son relativos a concesiones de principios de la pasada década o porque la Junta de Andalucía —ahora presidida por Juan Manuel Moreno Bonilla, del PP, con apoyo de Ciudadanos y Vox— obvia sus informes negativos, a pesar de ser vinculantes. Fuentes de la Administración andaluza dicen que han tenido en cuenta los informes, pero que la competencia de las concesiones es suya y la decisión, también. “El presidente dice que hace falta una revolución verde, pero luego hace lo contrario”, añaden desde Ecologistas Malaka. Carlos Jiménez, catedrático de Ecología de la Universidad de Málaga (UMA), cree que estos chiringuitos pueden tener influencias negativas, pero dependerá de circunstancias como la distancia al mar, la presencia o no de protecciones en la costa o la existencia de arroyos subterráneos. “No se debe generalizar, habría que estudiar cada caso en concreto”, añade Paco Franco, director de la cátedra de Ciencias del Litoral de la Costa del Sol.
La mayor parte de los establecimientos que cuentan con un almacén de hormigón bajo tierra son chiringuitos que llevaban años en la arena construidos con madera u otros materiales temporales. Poco a poco han ido presentando proyectos para cambiar su formato, de acuerdo con la legalidad, al hormigón. Según la web de la Junta de Andalucía, la última concesión con sótano se dio en febrero de 2020, en Torremolinos, pero desde entonces hay nuevas peticiones en trámite, como denuncia Ecologistas Malaka constantemente a través de sus redes sociales. La organización teme que la cifra aumente y la situación vaya a peor. “No tenemos absolutamente nada en contra de los chiringuitos tradicionales. Sí frente a quienes abusan de la ocupación del dominio público y se lucran a partir de algo que es de todos”, explica Salvador Campos, que destaca que esta “es la primera vez que se plantea poner en duda el procedimiento de las concesiones porque nadie está controlando lo que se hace, ni siquiera la propia Administración competente, la Junta de Andalucía, que cuenta con inspectores específicos para ello”, insiste el letrado. Por su parte, la Junta no facilita los datos sobre cuántos vigilantes, expedientes o multas ha impuesto.
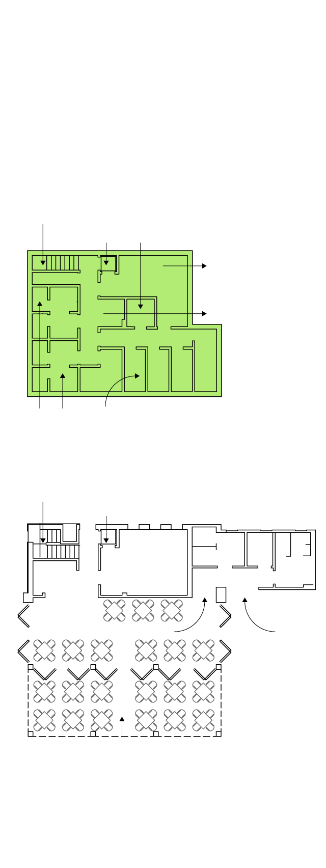
Distribución de espacios
Tanto la planta baja como el sótano ocupan una
superficie aproximada de 150 m2 cada uno. Tras la
cimentación de la planta baja se levanta la construcción
permanente de la nueva planta del chiringuito. Cada
establecimiento adapta la disposición de las estancias
interiores a su conveniencia.
Sótano
Escalera de acceso
Montacargas
Congelador
Área de preparación
de alimentos
Oficina
Aseos
Aseos
Vestuarios
Almacenes de productos
Planta baja
Escalera de acceso
Montacargas
Aseos
Cocina
Aseos
Bar
Aseos
Comedor
Aseos
Acceso
público
a los aseos
Terraza
cubierta
Fuente: Junta de Andalucía y elaboración propia.
Papallones
Distribución de espacios
Tanto la planta baja como el sótano ocupan una
superficie aproximada de 150 m2 cada uno. Tras la
cimentación de la planta baja se levanta la construcción
permanente de la nueva planta del chiringuito. Cada
establecimiento adapta la disposición de las estancias
interiores a su conveniencia.
Sótano
Escalera de acceso
Montacargas
Congelador
Área de preparación
de alimentos
Oficina
Aseos
Aseos
Vestuarios
Almacenes de productos
Planta baja
Escalera de acceso
Montacargas
Aseos
Cocina
Aseos
Bar
Aseos
Comedor
Aseos
Acceso
público
a los aseos
Terraza
cubierta
Fuente: Junta de Andalucía y elaboración propia.
Papallones
Distribución de espacios
Tanto la planta baja como el sótano ocupan una superficie aproximada de 150 m2 cada uno. Tras la
cimentación de la planta baja se levanta la construcción permanente de la nueva planta del chiringuito.
Cada establecimiento adapta la disposición de las estancias interiores a su conveniencia.
Sótano
Escalera de
acceso
Montacargas
Congelador
Área de
preparación
de alimentos
Planta sótano
Vestuario
Oficina
Aseos
Aseos
Vestuarios
Almacenes de productos
Planta baja
Acceso al
sótano
Montacargas
Aseos
Aseos
Cocina
Aseos
Bar
Comedor
Acceso a los aseos
Acceso
público
a los aseos
Planta baja
Terraza
cubierta
Fuente: Junta de Andalucía y elaboración propia.
Papallones
Los ecologistas buscan que se abandone el modelo de hormigón bajo tierra y se sancione a quien incumpla, “pero nadie se atreve a abrir el melón de comprobar qué se está haciendo bien o mal”, asegura Campos, de ahí que hayan solicitado que sea Costas quien tenga de nuevo la capacidad de otorgar o revocar licencias. E insiste en que también los ayuntamientos, como el de Marbella, tienen personal y competencias —según reflejan los pliegos de condiciones de las concesiones— para vigilar situaciones como el exceso de ocupación, algo que desde el municipio niegan, diciendo que ese control “corresponde a la Junta de Andalucía”.

Exceso de ocupación
En ese sentido, basta que un establecimiento supere el 10% de ocupación que refleja su concesión para que esta le pueda ser revocada, además de recibir una sanción. “Pero hay muchos casos que parecen imperios sobre la arena y son una clara competencia desleal”, critican algunos responsables de chiringuitos, que señalan la ausencia total de controles que vigilen o sancionen tanto por parte municipal como autonómica. Ecologistas en Acción también ha entrado a cuestionar esa circunstancia. Y, de hecho, es fácil comprobar in situ o a través de fotos en Instagram o Facebook el despliegue de mesas con comensales, camas balinesas y un sinfín de macetas y otros elementos sobre la arena ocupando mucho más espacio —incluso en pandemia—, masificando la arena “y poniendo precios injustificados”.
La organización ha declarado que Macao Beach triplica, con 450 metros de ocupación, el permiso de 150 con el que cuenta. Que las instalaciones de Mistral tienen unos 700 metros cuadrados cuando disponen de licencia para 225 o que Trocadero Playa tiene autorizados otros 225 metros, pero “ocupa una superficie de, como mínimo, 1.000 metros cuadrados de Dominio Público Marítimo Terrestre. También que Trocadero Arena multiplica por seis su concesión. “Tiene permiso para 132 metros y supera los 750 de ocupación”, afirman en la entidad verde, que también dice que el chiringuito Guayaba ocupa 550 metros cuando tiene permiso para 155 y denuncian su proyecto de renovación —tirar el actual y levantar uno nuevo— porque afecta a una zona arqueológica donde existe un bien de interés cultural y una necrópolis. Algunas de estas denuncias tienen fecha de octubre de 2020 en el registro de entrada de la Junta de Andalucía y aún no han sido contestadas.
Especulación a pesar de la inseguridad jurídica
Los constantes cambios en la normativa, así como las diferentes normativas estatales, autonómicas y locales, hacen que el sector de los chiringuitos viva siempre en el alambre, con una inseguridad jurídica denunciada desde hace años. En la última década, eso sí, la Junta de Andalucía y los municipios han ido regularizando un amplio número de este tipo restaurantes, aunque quedan muchos pendientes (por ejemplo, de los 22 de Estepona, tres aún esperan la luz verde). El ritmo es cada vez mayor: un centenar de ellos han pasado a ser legales solo en los dos últimos años, según anunció en otoño el portavoz del Gobierno andaluz, Elías Bendodo, en Fuengirola. A pesar de las permanentes dudas legales, el sector también denuncia la existencia de grupos empresariales que optan constantemente a las concesiones y que, cuando consiguen alguna, no ejecutan el proyecto, sino que terminan realizando un traspaso millonario de los derechos de concesión (algo legal dos años después de recibir la licencia). En internet es fácil encontrar establecimientos a la venta por precios de entre uno y dos millones de euros en la Costa del Sol. “Hay mucha especulación”, denuncian desde Ecologistas en Acción y confirman fuentes de la Asociación de Empresarios de Playas de Málaga.
Para conocer las noticias más importantes de Clima y Medio Ambiente de Papallones apúntese aquí a nuestra newsletter semanal.
Siga la sección de Clima y Medio Ambiente en Twitter y Facebook